

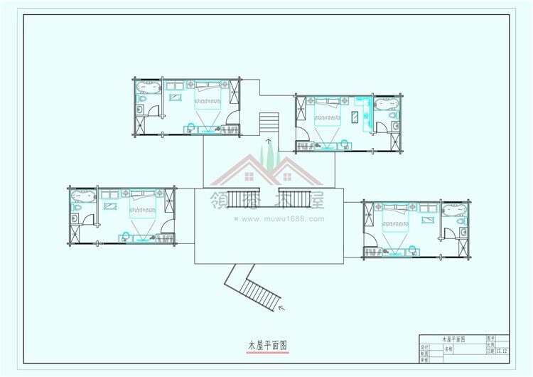
景區(qū)度假小木屋,由5套小木屋組成

度假小木屋周邊近觀圖

度假木屋地面布景圖

單個木屋效果圖,正面斜視圖

度假木屋單個背景效果圖

單個度假木屋平地場景配置圖

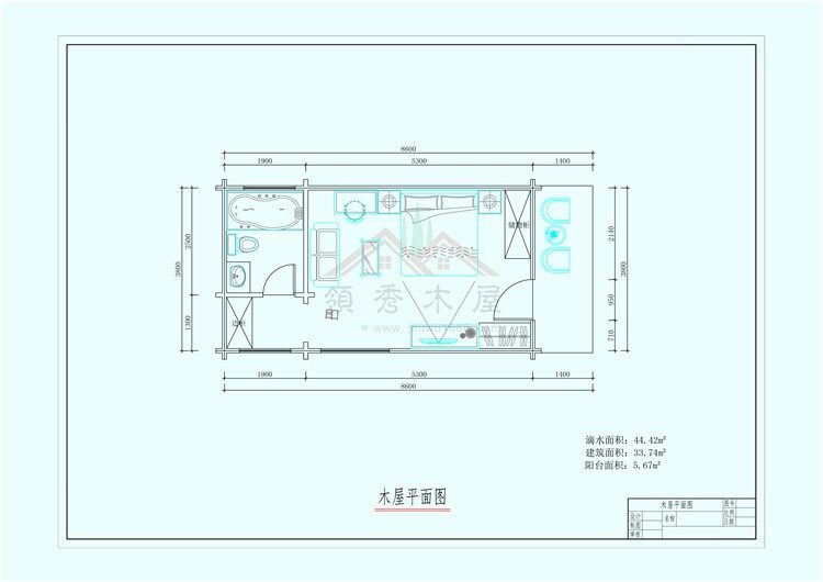
單個度假木屋平面圖

5套度假木屋布置平面圖
老網(wǎng)站不再更新,請前往我們的全新 VIP高端案例畫冊網(wǎng)體驗 3D 實景展示
?? 點擊進(jìn)入新版高端案例畫冊網(wǎng) (VIP.MUWU1688.COM)