
MW7兩層休閑小別墅+平面圖+剖面圖:小木屋別墅設計效果圖全方位展示,適用于度假酒店木屋、休閑居住。

小木屋別墅剖面結構圖










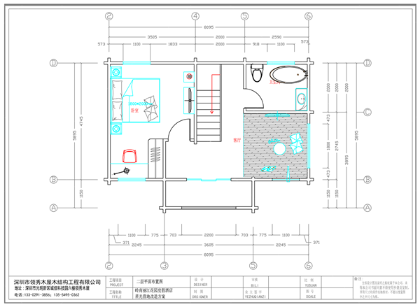
小木屋別墅二層平面圖

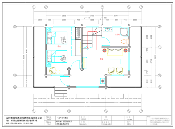
小木屋別墅一層平面圖
老網(wǎng)站不再更新,請前往我們的全新 VIP高端案例畫冊網(wǎng)體驗 3D 實景展示
?? 點擊進入新版高端案例畫冊網(wǎng) (VIP.MUWU1688.COM)